Продается однокомнатная новостройка, 40 кв.м., 16/22 эт
Обзор№ - 6372
| Стоимость | 5 250 000 |
|---|---|
| Стадия строительства | дом построен, но не сдан |
| Год постройки | 2022 |
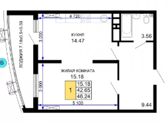
| Площадь, кв.м. | 40 |
| Жилая площадь | 16 |
| Площадь кухни, кв.м. | 13 |
| Этаж | 16 |
| Этажность | 22 |
| Комнат в квартире | 1 |
| Ремонт | Чистовая |
| Материал стен | Монолитный |
| Тип сделки новостройки | переуступка |
| Статус Недвижимости Авито | Квартира |
| Тип продажи Циан | Договор уступки права требования |
| Тип парковки | Парковочное место |
Адрес
| Населенный пункт | Краснодар |
|---|---|
| Район города | Центральный внутригородской округ |
| Улица | улица Воронежская |
| Номер дома | 47Д |
В избранное Продам 1-к в Центральном Округе
В продаже 1- ком квартира в Центраоьном Округе Краснодара.
Квартира для большой и дружной семьи,площадь 40м2,кухня14м2 великолевным видом на р.Кубань и город.
Квартира продается в предчистовой отделке ,так же есть возмоность приобрести ее с ремонтом!!!!!!
Данный комплекспозволт Вам наслаждатся чистым воздухом,он вдали от шумных магистралей,рядом набережная реки Кубань.
В непосредственной близости детские сады,школы,Порк Солнечный Остров,рынка Торговые Центры,рядом КубГУ.
Квартира акционная!!!Возможна любая форма оплаты.откроем ипотеку.
Андрей.











