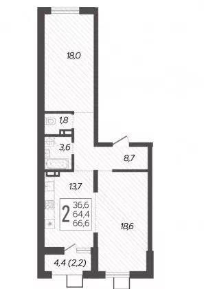
Продается 2-х комн. новостройка, 67 кв.м., 10/19 эт
| Стоимость | 6 293 000 |
|---|---|
| Стадия строительства | дом построен, но не сдан |
| Год постройки | 2022 |
| Площадь, кв.м. | 67 |
| Жилая площадь | 37 |
| Площадь кухни, кв.м. | 14 |
| Этаж | 10 |
| Этажность | 19 |
| Комнат в квартире | 2 |
| Ремонт | Требуется ремонт |
| Материал стен | Монолитный |
| Тип сделки новостройки | переуступка |
| Населенный пункт | Краснодар |
|---|---|
| Район города | жилой комплекс Новелла |
| Улица | улица Питерская |
| Номер дома | 40лит6 |
Двухкомнатная квартира в Районе ТРК Красная Площадь, дом класса комфорт. Система «Умный дом», красивые входные группы, облагороженная придомовая территория. Безопасные детские площадки, двор без машин, парковки хватит всем, 2 лифта фирмы OTIS. Транспортная доступность (троллейбусы, автобусы), коммерция вся есть на первом этаже, Здесь в шаговой доступности находятся более 20 муниципальных детских учебных заведений, несколько рынков, ТРК Красная Площадь, Табрис. удобный выезд к Черному морю. Несколько вариантов отделки, возможно приобретение квартиры с ремонтом. Форма оплаты: наличная форма, ипотека, ипотека без первоначального взноса! Звоните, оперативный показ. Открытие ипотеки любой сложности с большой вероятностью одобрения! Юридическое сопровождение сделки!















