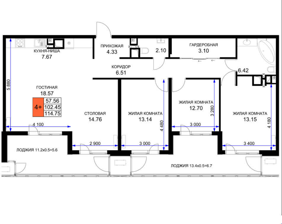
Продается 4-х комн. новостройка, 114.75 кв.м., 15/16 эт

Обзор
Стоимость
11 200 000
Год постройки2025
Площадь, кв.м.114.75
Жилая площадь50.75
Площадь кухни, кв.м.26.24
Этаж15
Этажность16
Комнат в квартире4
РемонтЧистовая
Материал стенМонолитный
Тип сделки новостройкипервичная продажа
Статус Недвижимости АвитоКвартира
Тип парковкиПодземная
Возможность ипотекиЕсть
Вид из окнана улицу
Способ продажи дополнительноМожно в ипотеку
Способ связи avitoПо телефону
Способ продажи - avitoДоговор долевого участия
Адрес
Населенный пунктКраснодар
Район городамикрорайон 2-я Площадка
Улицаулица Ветеранов
Номер дома85
В избранное Четырёхкомнатная квартира

Четырёхкомнатная квартира.Современный жилой комплекс комфорт класса , продуманная придомовая территория, красочное оформления двора, сквозные подъезды и дизайнерские входные группы. Район Т.Ц. Красная площадь, рядом с комплексом расположены социально значимые объекты инфраструктуры: Табрис, торговый центр Красная Площадь, Ледовый дворец, Музей «Россия – моя история», Баскет Холл, Магнит, Парк им. 300-летия полиции России, Выставочный центр Экспоград-Юг, Леруа Мерлен. Развита инфраструктура и для детей. Рядом с комплексом расположены 3 школы и 4 детских сада. Также, рядом расположена Городская поликлиника №13 города Краснодара. Действует субсидированная ипотека. Звоните , с удовольствием отвечу на все ваши вопросы, при необходимости открою ипотеку. Анна 

Расположение

Важно! На карте не всегда указано точное местоположение. Более точную информацию можно узнать у менеджера, разместившего объект