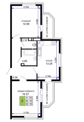
Продается 2-х комн. новостройка, 62.16 кв.м., 7/15 эт
Обзор№ - 10013
| Стоимость | 5 905 200 |
|---|---|
| Стадия строительства | дом построен, но не сдан |
| Год постройки | 2022 |
| Площадь, кв.м. | 62.16 |
| Жилая площадь | 32 |
| Площадь кухни, кв.м. | 13 |
| Этаж | 7 |
| Этажность | 15 |
| Комнат в квартире | 2 |
| Ремонт | Дизайнерский |
| Материал стен | Кирпич |
| Тип сделки новостройки | первичная продажа |
| Статус Недвижимости Авито | Квартира |
| Возможность ипотеки | Есть |
| Вид из окна | На солнечную сторону |
| Способ продажи дополнительно | Можно в ипотеку |
Адрес
| Населенный пункт | Краснодар |
|---|---|
| Район города | Прикубанский |
| Улица | улица Петра Метальникова |
| Номер дома | 36 |
В избранное квартира с ремонтом
Квартира в современном новом микрорайоне рядом с центром Краснодара. Квартира с ремонтом: натяжной потолок, обои, ламинат, в санузле сантехника, субсидированная ставка, минимальный платеж по ипотеке.
В жилом комплексе есть все для комфортной жизни детские и спортивные площадки, зоны отдыха для взрослых, паркинг, прогулочные аллеи, торговые центры. Рядом с домом Гимназия, школа и детский сад, Баскет-Холл и Ледовый дворец, ТРК Красная Площадь. Удобная транспортная развязка, трамвай. Любая форма оплаты, откроем ипотеку дистанционно! Показ объекта, звоните!















