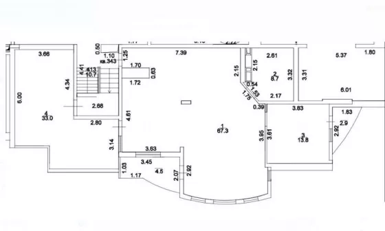
Продается 4-х комн. новостройка, 200 кв.м., 20/21 эт

Обзор
Стоимость
19 800 000
Год постройки2021
Площадь, кв.м.200
Жилая площадь140
Площадь кухни, кв.м.40
Этаж20
Этажность21
Комнат в квартире4
РемонтТребуется ремонт
Материал стенМонолитный
Адрес
Населенный пунктКраснодар
Улицаулица Черниговская
Номер дома1
В избранное Двухуровневый пентхаус

Двухуровневый пентхаус в доме бизнес-класс. Дом расположен в центральном районе на берегу реки с собственной набережной. Красивые дизайнерские входные групп, скоростные, панорамные лифты, закрытая территория с видео наблюдением, подземный и наземный паркинг, своя водяная скважина с Артезианской водой, своя котельная, система умный дом. Три лоджии и большая терраса, шикарный вид на стадион "Краснодар" и город. Отличная планировка, панорамное остекление. По всем вопросам звоните. Анна 

Расположение

Важно! На карте не всегда указано точное местоположение. Более точную информацию можно узнать у менеджера, разместившего объект