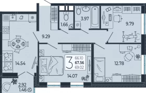
Продается 3-х комн. новостройка, 69.02 кв.м., 10/21 эт
| Стоимость | 8 700 000  | 
|---|---|
| Стадия строительства | сдан в эксплуатацию | 
| Год постройки | 2024 | 
| Площадь, кв.м. | 69.02 | 
| Жилая площадь | 36.64 | 
| Площадь кухни, кв.м. | 14.54 | 
| Этаж | 10 | 
| Этажность | 21 | 
| Комнат в квартире | 3 | 
| Ремонт | Требуется ремонт | 
| Материал стен | Монолитный | 
| Тип сделки новостройки | первичная продажа | 
| Статус Недвижимости Авито | Квартира | 
| Тип продажи Циан | Договор уступки права требования | 
| Тип парковки | Наземная многоуровневая | 
| Возможность ипотеки | Есть | 
| Вид из окна | на улицу | 
| Способ продажи дополнительно | Можно в ипотеку | 
| Способ связи avito | По телефону и в сообщениях | 
| Дополнительно - avito | Лоджия, Панорамные окна | 
| Способ продажи - avito | Договор долевого участия | 
| Населенный пункт | Краснодар | 
|---|---|
| Район города | микрорайон Россинского | 
| Улица | бульвар Адмиралтейский | 
| Номер дома | 1 | 
Трехкомнатная квартира. Потрясающий жилой комплекс с элементами бизнес класса, панорамное остекление, подземная парковка, дизайнерские входные группы, озеленение территории. Район в котором есть всё для комфортной жизни, в пару шагах новая школа, рядом строиться ещё две, детские сады, два торговых центра, все возможные сетевые магазины, аптеки, пекарни, салоны, ярмарки и многое другое, во круг дома проходит зеленая аллея на которой расположен поющий фонтан и красивый храм. Широкие дворы, много парковочных мест и всё под рукой, район в котором действительно хочется жить. Цена со скидкой! Звоните с удовольствием отвечу на все ваши вопросы. При необходимости открою ипотеку. Анна


























 
						 
						 
						