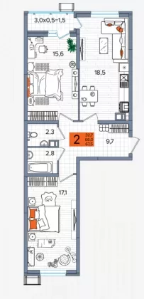
Продается 2-х комн. новостройка, 67.5 кв.м., 7/16 эт
| Стоимость | 7 087 500 |
|---|---|
| Стадия строительства | строится |
| Год постройки | 2024 |
| Площадь, кв.м. | 67.5 |
| Жилая площадь | 33 |
| Площадь кухни, кв.м. | 18.5 |
| Этаж | 7 |
| Этажность | 16 |
| Комнат в квартире | 2 |
| Ремонт | Предчистовая |
| Материал стен | Монолитный |
| Тип сделки новостройки | первичная продажа |
| Тип парковки | Подземная |
| Возможность ипотеки | Есть |
| Вид из окна | во двор |
| Способ продажи дополнительно | Можно в ипотеку |
| Дополнительно - avito | Лоджия, Панорамные окна |
| Населенный пункт | Краснодар |
|---|---|
| Район города | жилой комплекс Сармат |
| Улица | улица Западный Обход |
| Номер дома | 65/1 |
Большая двухкомнатная квартира в комплексе класса комфорт+.
Подходит любая форма оплаты - все виды льготной ипотеки, наличный расчет, рассрочка.
Комплекс построен по технологии монолит-кирпич и отвечает всем параметрам заявленного класса жилья.
Подземный паркинг, огромный двор, большое количество коммерции, в двух минутах ходьбы новая муниципальная школа и два детских сада, дубовая аллея и парковая зона.
Удобная транспортная развязка в разные стороны города, строится трамвайная линия.
Квартира сдается в качественной предчистовой отделке, полная разводка электрики, ровные отштукатуренные стены, механическая стяжка пола, радиаторы отопления, застекленная лоджия, хорошая входная дверь. Улучшенная планировка евроформата на две стороны.
По всем вопросам звоните, Александр.















