Продается 2-х комн. новостройка, 52.29 кв.м., 11/16 эт
Обзор№ - 15588
| Стоимость | 6 065 640 |
|---|---|
| Стадия строительства | сдан в эксплуатацию |
| Год постройки | 2023 |
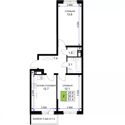
| Площадь, кв.м. | 52.29 |
| Жилая площадь | 26 |
| Площадь кухни, кв.м. | 13 |
| Этаж | 11 |
| Этажность | 16 |
| Комнат в квартире | 2 |
| Ремонт | Предчистовая |
| Материал стен | Монолитный |
| Тип сделки новостройки | первичная продажа |
| Статус Недвижимости Авито | Квартира |
| Тип продажи Циан | Договор уступки права требования |
| Тип парковки | Открытая во дворе |
| Возможность ипотеки | Есть |
| Вид из окна | во двор и на улицу |
| Способ продажи дополнительно | Можно в ипотеку |
| Способ связи avito | По телефону и в сообщениях |
| Дополнительно - avito | Лоджия |
Адрес
| Населенный пункт | Краснодар |
|---|---|
| Район города | жилой комплекс Ракурс |
| Улица | улица имени Героя Ростовского |
| Номер дома | 8к7 |
В избранное двухкомнатная квартира
Двухкомнатная квартира в районе Красной площади.
Дом сдан - проходит льготная и семейная ипотека!!!
Можно без первоначального взноса - без завышений и комиссий!
Комплекс находится в тихом, зеленом районе и при этом с хорошо развитой устоявшейся инфраструктурой.
Школы, детские сады, поликлиники, торговые центры, фитнесс центры, магазины, аптеки - все на территории микрорайона.
Удобная транспортная развязка, поблизости тц Красная площадь, парк 300-летия полиции.
Квартира от застройщика - выполнена качественная предчистовая отделка (полная разводка электрики, стяжка пола, ровные отштукатуренные стены)
По всем вопросам звоните, Александр.

























