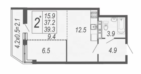
Продается однокомнатная новостройка, 39.3 кв.м., 12/21 эт
Обзор№ - 4747
| Стоимость | 3 900 000 |
|---|---|
| Год постройки | 2022 |
| Площадь, кв.м. | 39.3 |
| Жилая площадь | 16 |
| Площадь кухни, кв.м. | 12.5 |
| Этаж | 12 |
| Этажность | 21 |
| Комнат в квартире | 1 |
| Ремонт | Требуется ремонт |
| Материал стен | Монолитный |
| Тип сделки новостройки | переуступка |
| Статус Недвижимости Авито | Квартира |
Адрес
| Населенный пункт | Краснодар |
|---|---|
| Район города | жилой комплекс Дружный |
| Улица | бульвар Адмиралтейский |
| Номер дома | 3к3 |
В избранное сдается в этом году.
Просторная однокомнатная. Благодаря большой лоджии можно сделать двухкомнатную.
Субсидированная ипотека на весь срок кредитования. Вся сумма в договоре.
Лучшая планировка. Высокое качество строительства.
Парковка есть, аллеи для прогулок,Все виды коммерции. Храм и ТЦ строится. Школа и поликлиника сдача в этом году.
Звоните. Показ в любое время.















