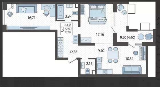
Продается 3-х комн. новостройка, 82 кв.м., 11/16 эт
| Стоимость | 8 499 956 |
|---|---|
| Стадия строительства | дом построен, но не сдан |
| Год постройки | 2023 |
| Площадь, кв.м. | 82 |
| Жилая площадь | 45 |
| Площадь кухни, кв.м. | 18 |
| Этаж | 11 |
| Этажность | 16 |
| Комнат в квартире | 3 |
| Ремонт | С отделкой |
| Материал стен | Монолитный |
| Тип сделки новостройки | первичная продажа |
| Статус Недвижимости Авито | Квартира |
| Тип продажи Циан | Договор уступки права требования |
| Тип парковки | На улице |
| Возможность ипотеки | Есть |
| Вид из окна | на улицу |
| Способ продажи дополнительно | Можно в ипотеку |
| Населенный пункт | Краснодар |
|---|---|
| Район города | жилой комплекс Новелла |
| Улица | улица Питерская |
| Номер дома | 40лит6 |
В продаже новая 3-ком квартира в районе ТРЦ Красная Площадь.
Квартира формата евро-3,с большой кухней-гостинной.
Территориально ЖК граничит с престижным Фестивальным и Центральным районами города,в 5-и минутах езды до Красной Площади.
ЖК представляет собой группу монолитных домов переменной этажности.
В квартире выполнена черновая отделка,предчистовая и отделка "под ключ".
На придомовой территории расположены игровые площадке,высожены деревья и кустарники.
Проект предусматривает строительство многоуровней парковки.
В шаговой доступности находятся школы,детские сады,продовольственные магазины,медицинские учреждения,аптеки,остановки общественного транспорта.
Любая форма оплаты.
Семейная ипотке,ипотека с гос.поддержкой,ипотека без первоначального взноса.
Открою ипотеку на лучших условиях.



























