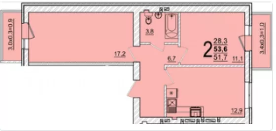
Продается 2-х комн. новостройка, 53.6 кв.м., 3/5 эт
| Стоимость | 6 247 600 |
|---|---|
| Площадь, кв.м. | 53.6 |
| Жилая площадь | 28.3 |
| Площадь кухни, кв.м. | 12.9 |
| Этаж | 3 |
| Этажность | 5 |
| Комнат в квартире | 2 |
| Ремонт | Предчистовая |
| Материал стен | Монолитный |
| Тип сделки новостройки | первичная продажа |
| Статус Недвижимости Авито | Квартира |
| Тип парковки | На улице |
| Возможность ипотеки | Есть |
| Вид из окна | во двор и на улицу |
| Способ продажи дополнительно | Можно в ипотеку |
| Способ связи avito | По телефону |
| Дополнительно - avito | Балкон |
| Способ продажи - avito | Договор долевого участия |
| Населенный пункт | аул Новая Адыгея |
|---|---|
| Район города | жилой комплекс Дарград |
| Улица | улица Тургеневское шоссе |
| Номер дома | 33/2к30 |
Семейная ипотека с двумя детьми до 18 лет!
Семейная ипотека с одним ребенком до 7 лет!!!
Материнский капитал и жилищные сертификаты, военная ипотека, IT- ипотека!
В жилом комплексе своя особая внутренняя среда, уютные зеленые дворы со скамейками, игровые и спортивные площадки, озеро с благоустроенной набережной, семейный сквер.
Просторные дворы, скрытые от шума и пыли.
Комплекс находится в удобном местоположении, все самые необходимые объекты инфраструктуры находятся в шаговой доступности.
3 мин. до Аквапарка,
5 до Школы,
3 мин. до Детского сада,
7 мин. до ТЦ «Мега-Адыгея»,
Аптеки: "Радуга", "Апрель".
Магазины: Пятёрочка, Ашан, Леруа Мерлен.
За 15 минут можно добраться до центра города Краснодар.
Удобный выезд в сторону моря!
120 км. До Черного моря,
200 км. До Азовского моря,
350 км до Города- курорта Сочи.
Остановка общественного транспорта находится в шаговой доступности!
15 минут до образовательных учреждений:
Кубанский государственный медицинский университет,
Кубанский государственный университет,
Кубанский государственный аграрный университет,
Краснодарское высшее военное училище им. генерала армии Штеменко С.М.,
Краснодарский Университет МВД РФ,
Кубанский государственный технологический университет,
Краснодарский филиал Российского экономического университета.
Проведу ОНЛАЙН показ! Звоните! Виктория.





































