Продается 5+ новостройка, 455 кв.м., 12/13 эт
Обзор№ - 24057
| Стоимость | 58 000 000 |
|---|---|
| Стадия строительства | дом построен, но не сдан |
| Год постройки | 2025 |
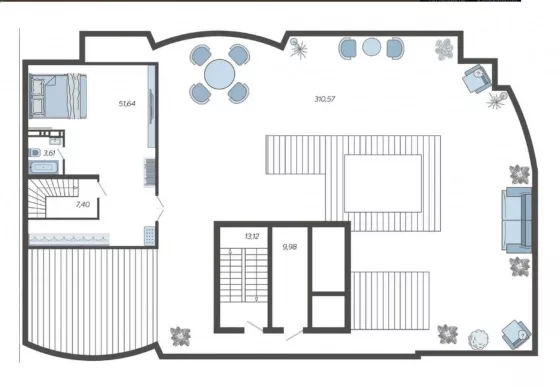
| Площадь, кв.м. | 455 |
| Жилая площадь | 250 |
| Площадь кухни, кв.м. | 50 |
| Этаж | 12 |
| Этажность | 13 |
| Комнат в квартире | 5+ |
| Ремонт | Предчистовая |
| Материал стен | Монолитный |
| Тип сделки новостройки | первичная продажа |
| Статус Недвижимости Авито | Квартира |
| Право собственности | Застройщик |
| Тип парковки | За шлагбаумом во дворе |
| Возможность ипотеки | Есть |
| Вид из окна | во двор и на улицу |
| Способ продажи дополнительно | Можно в ипотеку |
| Способ связи avito | По телефону |
| Дополнительно - avito | Лоджия, Гардеробная, Панорамные окна |
Адрес
| Населенный пункт | Краснодар |
|---|---|
| Район города | Карасунский внутригородской округ |
| Улица | улица Уральская |
| Номер дома | 100 |
В избранное продается 5-х квартира
Квартира по акции от застройщика
Единственный проект в городе
Свой БАССЕЙН
Своя терраса в 310 квадратов
Квартира в 2 уровня
Дом Бизнес класса
Через дорогу жк Патрики
Рядом с домом 3 школы , 2 детских сада, Гимназия
Поликлиника, Фитнес Клубы
Напротив дома ТЦ СБС , Галактика, Ашан, Леруа-Мерлен
Закрытая территория
Терраса для ВВQ и свободная для семейных вечеринок
Нет соседей ,вы на крыше дома ,а под вами техэтаж
Многоуровневый паркинг лифт спускает до парковки
Панорамное остекление
Звоните , звонок Бесплатный































